Bồn cầu 2 khối nắp điện tử COTTO C13527(CV3) - Riviera

Thương hiệu: Cotto
Tình trạng: Còn hàng
26.250.000₫ 35.000.000₫
Số lượng

THÔNG TIN SẢN PHẨM

  • Tên sản phẩm: Bàn cầu 2 khối nắp rửa điện tử C9203 Riviera Dòng sản phẩm: Riviera
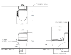
  • Kích thước (R x D x C): 455 x 720 x 765 mm
  • Thiết kế: Thân dài, thoát thẳng, tâm xả 305mm
  • Chất liệu: Ceramic, màu trắng
  • Công nghệ kháng khuẩn Ultra Clean+ ức chế sự phát triển của vi khuẩn lên đến 99% trong 24h và bề mặt bóng mịn.
  • Hệ thống xả Siphon Jet, chỉ 6L cho mỗi lần xả
  • Bao gồm: Van khóa, đế cầu, dây cấp
popup

Số lượng:

Tổng tiền:

Nội Thất Gia Thành
ĐĂNG NHẬP
Nhận nhiều ưu đãi hơn
Danh mục